Structure; Disposition En Ligne (Front) 2 Modules - Riello Systeme Condexa Pro 70P Instructions Pour Le Responsable De L'installation, Pour L'installateur Et Pour Le Service D'assista

Table des Matières
GÉNÉRALITÉS
1.3

Structure

1.3.1

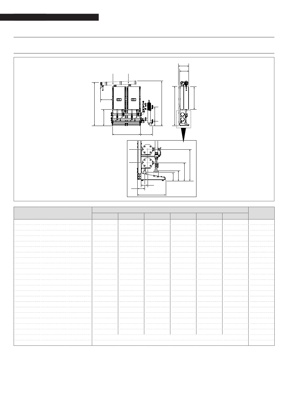
Disposition en ligne (FRONT) 2 modules

DESCRIPTION
A
B
C
D
E
F
G
H
J
K
L
M
N
O
P
Q
R
S
T
F1
F2
RI
MI
F1
F2
E
D
F
A
MI
RI
T
57 P
70 P
1494
1494
591
591
2131
2131
2051
2051
594
594
834
834
230
230
735
735
525
525
1010
1010
511
511
436
436
1999
1999
584
584
334
334
186
186
156
156
121
121
137
137
Ø 160
Ø 160
Ø 160
Ø 160
4
L
M
K
C
N
H
G
B
O
P
Q
R
S
J
Condexa PRO
90
100
1494
1494
591
591
2131
2131
2051
2051
594
594
834
834
230
230
735
735
525
525
1010
1010
511
511
436
436
1999
1999
584
584
334
334
186
186
156
156
121
121
137
137
Ø 160
Ø 160
Ø 160
Ø 160
Ø 3"
Ø 3"
115
135
1494
1494
mm
591
591
mm
2301
2301
mm
2221
2221
mm
594
594
mm
834
834
mm
230
230
mm
735
735
mm
525
525
mm
1173
1173
mm
511
511
mm
436
436
mm
1999
1999
mm
584
584
mm
334
334
mm
186
186
mm
156
156
mm
121
121
mm
137
137
mm
Ø 160
Ø 160
mm
Ø 160
Ø 160
mm
pouce
pouce
Table des Matières
loading

Table des Matières