Mise À La Masse De La Génératrice; Interconnexions Du Circuit De Commande - Generac Gen10Ad Manuel D'installation

Table des Matières
Les langues disponibles

Les langues disponibles

Système de Branchement C .A . de la Génératrice
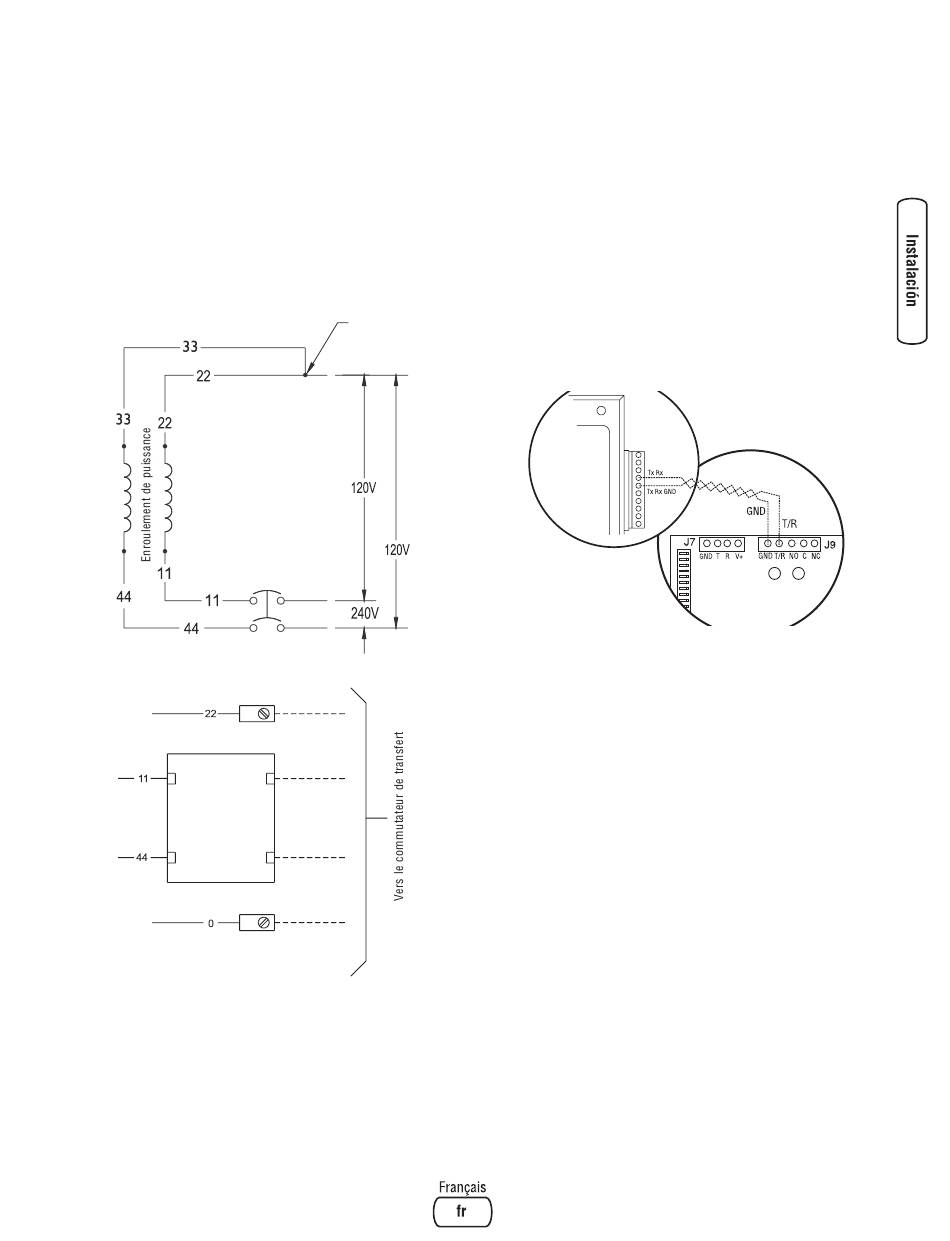
Un système de branchement C.A. monophasé à trois fils est
utilisé pour le groupe électrogène. L'assemblage du stator
est constitué d'une paire de bobines stationnaires à deux
bornes sortant de chaque bobine. La jonction des fils 22 et
33 forme le fil neutre, tel qu'illustré au moyen du dessin et
du schéma de câblage suivant. Garder l'installation éléctrique
de champ à un minimum. Vous trouverez un dessin et un
schéma de câblage dans le manuel d'utilisation.
REMARQUE: Le neutre n'est pas raccordé à la terre au
niveau de la génératrice.
Disjoncteur
Neutre
Disjoncteur
Mise à la terre
Mise à la Masse de la Génératrice
Le groupe électrogène résidentiel doit être mis à la masse en
conformité avec tous les codes, normes et réglementations
applicables. La languette de contact de mise à la masse
(GND) de la génératrice est située dans le panneau
de commande de la génératrice, sous le couvercle
des disjoncteurs.

Interconnexions du Circuit de Commande

Des fils de 240 V doivent être passés dans le conduit.
L'alimentation de 240 V procure l'alimentation de service à
la carte de circuit de la génératrice, la batterie en option et le
chauffe-huile, recharge la batterie et la génératrice démarre
en cas de panne électrique.
À l'aide du connecteur à 2 pôles fourni et d'un fil de
cuivre d'au moins 300 V, 14 AWG, fourni par l'installateur,
raccordez chaque terminal du circuit de la génératrice de
commande au commutateur de transfert automatique.
Communication du commutateur de transfert
En utilisant deux conducteurs torsadés de 18 AWG, pas plus
de 60 m (200 pieds) de long, raccordez Tx Rx et la mise
Neutre
à la terre Tx Rx à partir du panneau de commande de la
génératrice aux bornes GND et T\R du module de commande
du commutateur de transfert.
Système de Détection des Pannes
Le tableau de commande de la génératrice est doté d'un
affichage numérique pour indiquer les codes de défaillance. Il
affiche un code de défaillance lorsque certaines défaillances
sont décelées dans le groupe électrogène. Une autre DEL et
une plaque de montage sont fournies pour leur installation
à l'intérieur dans un endroit pratique. Pour obtenir des
renseignements plus détaillés, consultez la section Système
de détection des pannes du Manuel d'utilisation.
Si certains problèmes sont détectés dans le groupe
électrogène, le voyant clignotera un certain nombre de fois.
Elles permettent au propriétaire d'observer l'état du groupe
électrogène. Consultez le propriétaire pour convenir d'un
endroit pratique. Pour installer le panneau DEL à distance
du groupe électrogène :
1. Poussez la DEL à travers la plaque de montage par
l'avant jusqu'à ce qu'elle se fixe d'un coup sec.
IMPORTANT: Le voyant DEL est sensible à la polarité.
2. À l'aide du connecteur à 10 pôles fourni et d'un fil de
calibre minimal de 18 AWG fourni par l'installateur,
branchez la DEL à distance au tableau de commande de
la génératrice. Utilisez des serre-fils pour raccorder le
fil aux conducteurs de la DEL.
3. Fixez la plaque de montage au coffret électrique à faible
tension fourni par l'installateur.
génératrice
commutateur de
transfert
15
Table des Matières
loading

Table des Matières