Alimentation - Endress+Hauser Ria452 Information Technique

Masquer les pouces Voir aussi pour RIA452:
Table des Matières
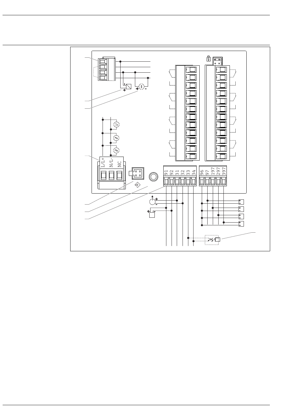
Occupation des bornes
6

Alimentation

1
81
82
11
12
2
3
20..36V DC
20...28V AC
50/60Hz
90...250V AC
50/60Hz
4
5
6
7
 2
Occupation des bornes de l' a fficheur de process
1
Entrée courant (12 et 82 pontées en interne)
2
Capteur passif -
3
Capteur actif -
4
Alimentation
5
Interface pour logiciel de configuration PC
6
Interface RS232
154
R8
155
156
144
R7
145
146
151
R6
152
153
141
R5
142
143
RS232
7
Alimentation de transmetteur et sortie
analogique
8
Sortie collecteur ouvert
D1 à D4 Entrées numériques
R1 à R4 Sorties relais
R5 à R8 Sorties relais (en option)
J1
Protection en écriture du hardware
RIA452
J1
nc
J2
54
R4
55
56
44
R3
45
46
51
R2
52
53
41
R1
42
43
D1
D2
D3
D4
8
A0028439
Endress+Hauser
Table des Matières
loading

Table des Matières