Télécharger Imprimer la page

Endress+Hauser Liquiline System CA80HA Manuel De Mise En Service page 18

Masquer les pouces Voir aussi pour Liquiline System CA80HA:
Description du produit
3.3.2
Plan des bornes
Les bornes ont un nom unique, ainsi déterminé :
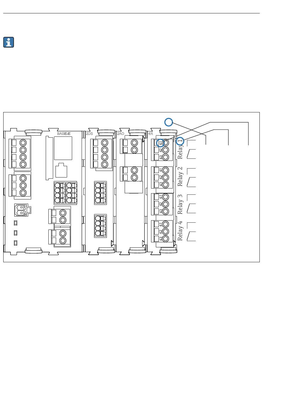
N° slot : n° port : borne
Exemple, contact NO d'un relais
Appareil avec 4 entrées pour capteurs numériques, 4 sorties courant et 4 relais
• Module de base BASE-E (comprend 2 entrées capteur, 2 sorties courant)
• Module 2DS (2 entrées capteur)
• Module 2AO (2 sorties courant)
• Module 4R (4 relais)
Slot
 8
Réalisation d' u n plan de bornes avec l' e xemple du contact NO (borne 41) d' u n relais
18
1
2
BASE-E
2DS
3
4
2AO
4R
Liquiline System CA80HA
Slot 4 Port 1 Pin 41
A0025105
Endress+Hauser
loading