Détails De La Sortie De Signal S3 (∑ Pour Les Sorties Déclenchées Et Les Défauts De L'appareil); Schéma De Fonctionnement - Block Basic Fix Manuel

Table des Matières
MANUEL FR
DISJONCTEUR ÉLECTRONIQUE
V 1.04
BASIC FIX
5.8
Détails de la sortie de signal S3 (∑ pour les sorties déclenchées et les défauts de
l'appareil)
Cette sortie de signal 24V n'est pas isolée du potentiel par rapport à l'entrée 0V du module. La signa-
lisation collective est réalisée par une sortie de signal « Active High ». Tant qu'aucune sortie n'a dé-
clenché et qu'aucun défaut interne de l'appareil n'a été détecté, cette sortie de signal est « Active
High » (+24V). Dès qu'au moins un canal de sortie a déclenché ou qu'un défaut de l'appareil a été dé-
tecté, la sortie de signal passe en « Active Low » (0V). Cette sortie de signal est protégée contre les
courts-circuits et peut être chargée jusqu'à 20 mA maximum..
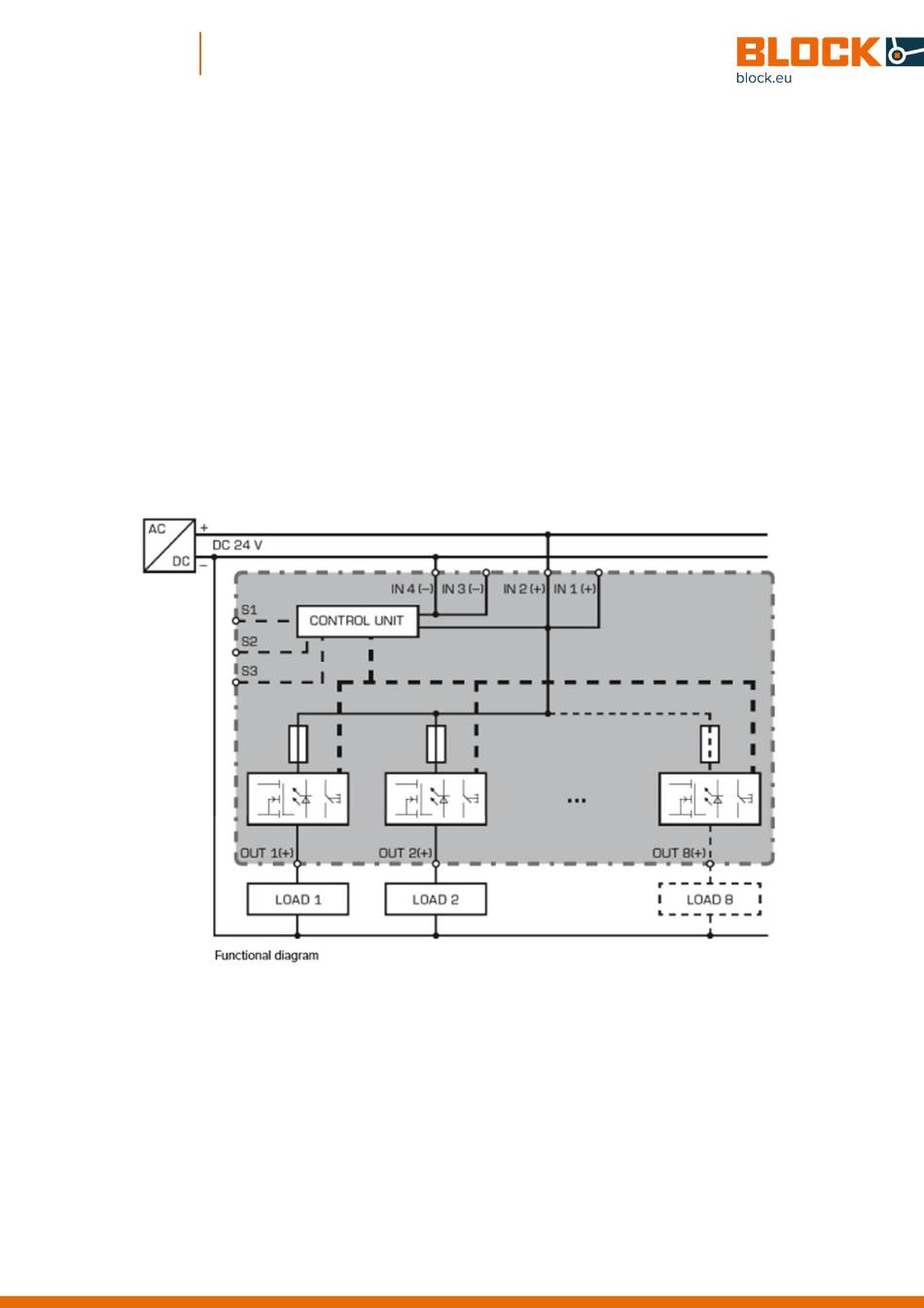
6. Schéma de fonctionnement
BLOCK Transformatoren-Elektronik GmbH
Max-Planck-Straße 36-46
27283 Verden
Germany
Phone +49 4231 678-0
Fax +49 4231 678-177
info@block.eu
block.eu
30.08.2024 / FRAN
Sous réserve de modifications techniques
15
Table des Matières
loading

Table des Matières