Section Telephonique; Raccordement Des Entrees Et Sorties De Cables; Interface Cle - Tecnoalarm Tp14/R Manuel Pour L'installateur

Table des Matières

2.4 SECTION TELEPHONIQUE

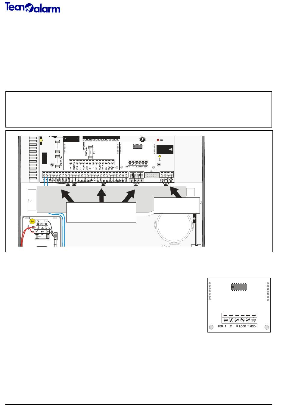
Le transmetteur téléphonique est situé sur la droite de la carte CPU. la led rouge (D17) et la led jaune(D14)permettent
de contrôler l'action du transmetteur:
Rouge LED D17 - voyant de prise de ligne
LED allumée
= prise de ligne et déconnexion de la ligne sur les bornes TEL
LED éteinte
= pas de prise de ligne
Jaune LED D14 - appel entrant
LED cligotante
= un appel entrant
LED éteinte
= pas d'appel entrant
2.5 RACCORDEMENT DES CABLES ENTREES ET SORTIES
V ATTENTION W
Tous les conducteurs d'entrée et de sortie doivent être pourvus (à l'intérieur de la centrale) d'un double
isolement et attachés au boîtier de l'appareil par les colliers fournis afin d'éviter les contacts accidentels avec les
parties nues des circuits primaires (fig. 14).
Pour les raccordements entre les détecteurs et la centrale, il conseillé d'utiliser des câbles blindés à plusieurs
brins (vérifier la section pour les alimentations des détecteurs!).
FUSE
T125mA

2.6 INTERFACE CLE

L'interfaces pour clés électroniques PERSONAL KEY ou MPKEY doit être montée
et raccordée dans l'espace prévu sur la carte CPU . Le bornier dans la partie
inférieure de la carte permet le raccordement de la centrale aux activateurs. Ce
raccordement doit être effectué avec un câble à 6 fils dont 2 fils sont utilisés pour
l'échange d'informations tandis que les 4 fils restants servent à la signalisaiton par
les leds présentes sur les activateurs.
Il est possible de raccorder un nombre inférieur de fils en cas de sous-utilisation de
la centrale.
Entrée clé
L'entrée clé KR1 est protégée contre le sabotage et a été testée pour supporter les
contraintes électriques et électromagnétiques. Pour la protection contre les
surtensions, une zener et une varistance sont présentes.
Sorties de signalisation (led)
Les sorties de signalisation LD1, LD2, LD3 , LD4 (led allumée = présence 13V) sont protégées contre le sabotage et
les court-circuits par un PTC.
Page 2-10
ENTREES ET SORTIES
DE CABLE
CABLE
TELEPHONIQUE
Fig.14
Fig.15
Hardware - TP14/R

Hide quick links:

Table des Matières
loading

Ce manuel est également adapté pour:

Tp6/r

Table des Matières