Rendamax R2000 Documentation Technique page 9

Table des Matières
Rendama x
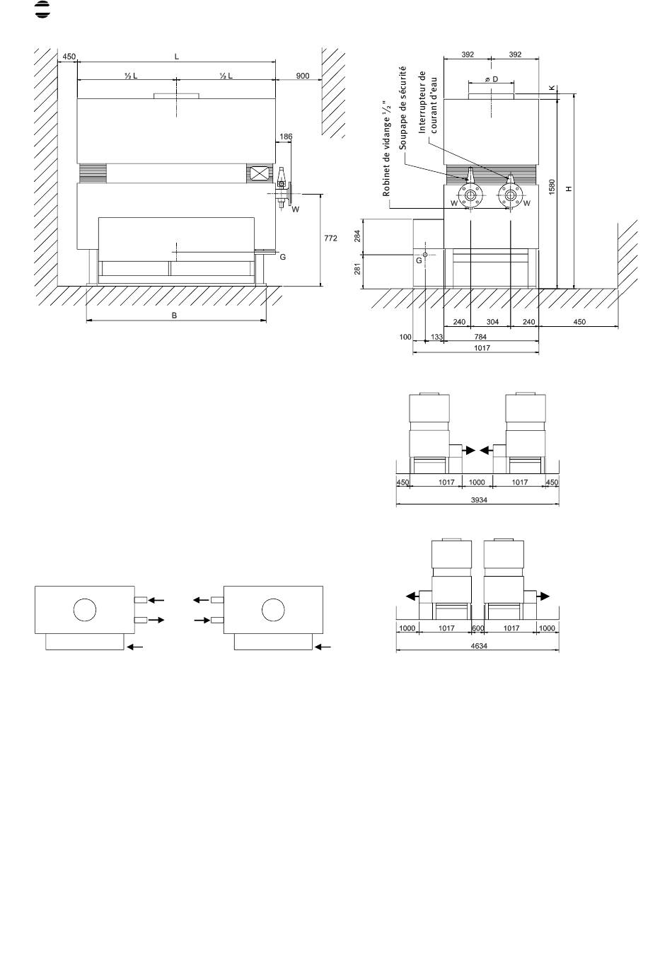
Soupapes de sécurité
1
type
2028:
"
2
type 2034 - 2048:
3
"
4
type 2056 - 2090: 1"
1
type 2105 - 2122: 1
"
4
STANDARD
Vue en plan
eau
gaz
SUR DEMANDE
Vue en plan
eau
Doc110/20CV04
Depart
gaz
Retour
5
Table des Matières
loading

Table des Matières