Section 1 : Montage Et Configuration; Exigences Liées Au Tracteur; Configuration De La Barre De Traction; Sorties Hydrauliques - Land Pride Rc4715 Manuel D'utilisateur

Débroussailleuses rotatives
Table des Matières

Section 1 : Montage et configuration

Section 1 : Montage et configuration
Exigences liées au tracteur
La puissance du tracteur doit se situer dans la plage spécifiée
ci-dessous. Les tracteurs en dehors de la plage de puissance
ne doivent pas être utilisés.
Puissance nominale . . . . . . . . . . . 41 à 186 kW (55 à 250 hp)
Type d'attelage (Se référer à la configuration
de la barre de traction.). . . . . . . . . . . . . . . Barre de traction
Régime de prise de force arrière :
RC4715. . . . . . . . . . . . . . . . . . . . . . . . . . . . . . . . 540 tr/min
RCG4715 . . . . . . . . . . . . . . . . . . . . . . . . . . . . . . 540 tr/min
RCM4715 . . . . . . . . . . . . . . . . . . . . . . . . . . . . . 1 000 tr/min
RCGM4715. . . . . . . . . . . . . . . . . . . . . . . . . . . . 1 000 tr/min
Sorties hydrauliques (Se référer à la configuration hydraulique.)
Standard d'usine . . . . . . . . . . . . . . . . . .Deux sorties doubles

Configuration de la barre de traction

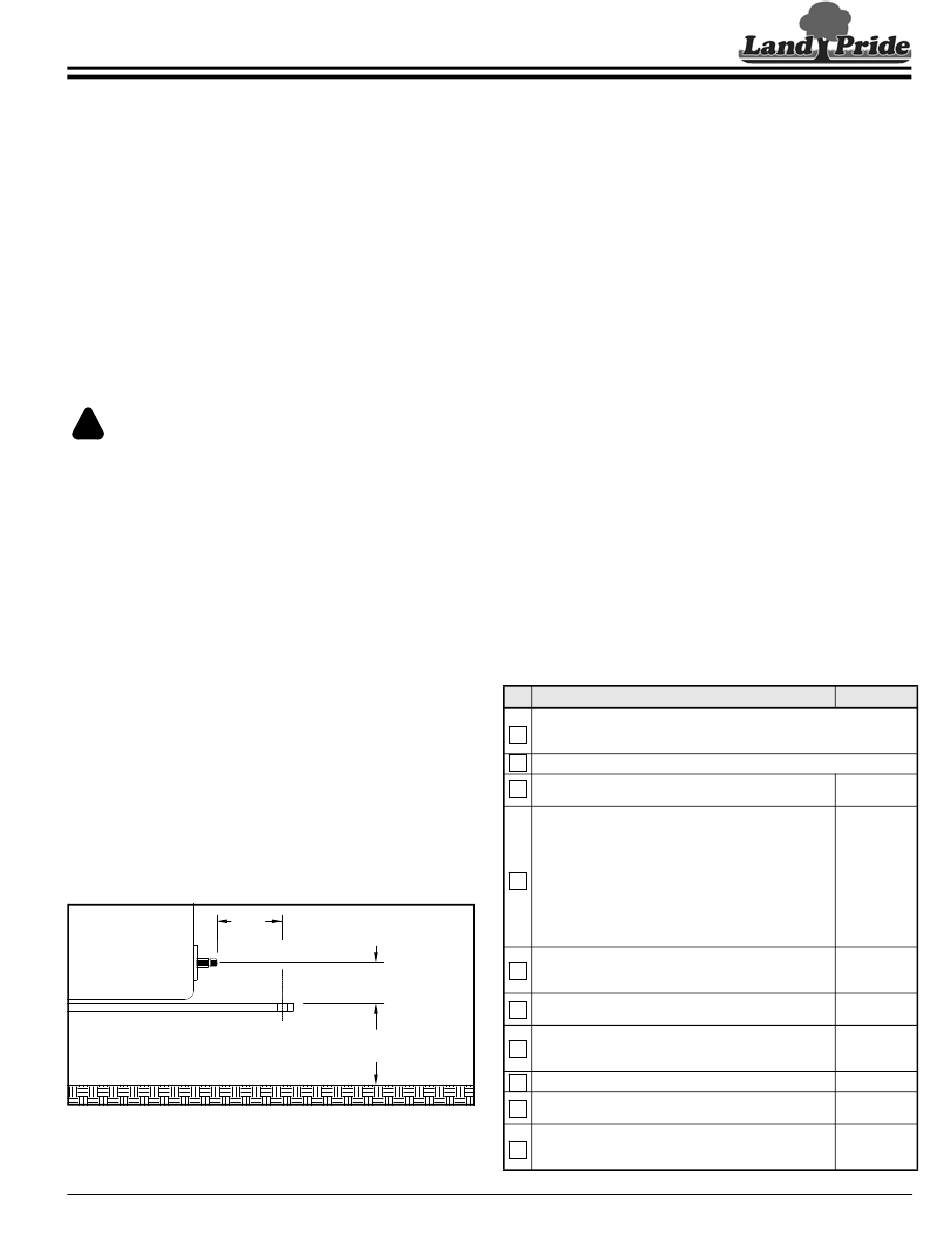
Consulter la Figure 1-1 :
!
AVERTISSEMENT
Afin de prévenir des blessures graves ou la mort :
Ne pas utiliser un tracteur ni trop petit ni trop gros. Les petits trac-
teurs peuvent être poussés et renversés. Les gros tracteurs peuvent
endommager l'outil attelé.
Ne pas utiliser un adaptateur de prise de force. L'adaptateur aug-
mente la contrainte sur l'arbre de prise de force du tracteur, ce qui
peut endommager l'arbre de prise de force et l'arbre de transmis-
sion. Il annule également l'effet du carter de protection de prise de
force du tracteur.
Des dommages à la prise de force peuvent se produire si les dis-
tances « A » et « B » ne sont pas correctement maintenues.
Maintenir une bonne distance, dimension « A », entre le centre
du trou de goupille d'attelage de la barre de traction et l'extré-
mité de l'arbre de prise de force du tracteur.
Prise de force de 540 tr/min et 1 000 tr/min avec alésage de
fourche d'arbre de transmission de 3,49 cm (1 3/8 po) :
« A » . . . . . . . . . . . . . . . . . . . . . . . . . 36 à 41 cm (14 à 16 po)
« B » . . . . . . . . . . . . . . . . . . . . . . . . . 20 à 25,4 cm (8 à 10 po)
« C ». . . . . . . . . . . . . . . . . . . . . . . . . 46 à 56 cm (18 à 22 po)
Prise de force de 1 000 tr/min avec alésage de fourche
d'arbre de transmission de 4,45 cm (1 3/4 po) :
« A » . . . . . . . . . . . . . . . . . . . . . . . . . 46 à 51 cm (18 à 20 po)
« B » . . . . . . . . . . . . . . . . . . . . . . 25,4 à 30,5 cm (10 à 12 po)
« C ». . . . . . . . . . . . . . . . . . . . . . . . . 46 à 56 cm (18 à 22 po)
22273
A
Arbre de prise de force
Barre de
traction
Niveau du sol
Distance de la prise de force à la barre de traction
Figure 1-1
8 octobre 2020
Table des matières

Sorties hydrauliques

En fonction de l'option d'articulation achetée, deux ou trois sor-
ties doubles sont requises. Deux sorties sont requises lorsque
l'on choisit une option d'articulation où les ailes se plient simulta-
nément. Trois sorties sont requises lorsque l'on choisit une
option d'articulation indépendante des ailes.
Land Pride recommande vivement de raccorder le(s) tuyau(x)
d'articulation des ailes à une sortie double correspondant aux
capacités de flottaison et d'utiliser la position flottante lorsque
vous êtes sur le terrain.
Accessoire disponible pour le passage de deux sorties doubles
à une sortie double.

Avant de commencer

S'assurer de lire et entièrement comprendre le présent manuel
d'utilisateur. Une bonne compréhension du fonctionnement de la
débroussailleuse rotative facilitera le montage et la configuration
de l'outil.
Il est préférable de consulter la « Liste de vérification de mon-
tage » sur cette page avant de monter la débroussailleuse rota-
tive. Pour procéder plus rapidement au montage et afin de rendre
le travail plus sécuritaire, s'assurer de disposer de toutes les
pièces et de l'équipement nécessaires à la portée de la main.
Exigences liées au couple
Se reporter au « Tableau des couples de serrage pour les
tailles de boulons classiques » à la page 65 pour déterminer
les couples de serrage appropriés lors du serrage de la quincail-
lerie. Consulter le bas du tableau « Couples de serrage sup-
plémentaires » pour connaître les exceptions aux couples de
serrage.
Disposer d'un palan, d'un chariot élévateur à fourche ou d'un chargeur muni
de chaînes au format recommandé et de supports de sécurité capables de
soulever l'équipement.
S'assurer qu'au moins deux personnes sont disponibles lors du montage.
S'assurer que tous les composants majeurs et les pièces
détachées sont expédiés avec l'appareil.
Vérifier à deux reprises pour s'assurer que toutes les
pièces, les attaches et les goupilles sont installées aux
endroits prescrits. Consulter le Manuel des pièces en cas
de doutes. Le double contrôle réduit les risques de mal
utiliser un boulon qui pourrait être utile plus tard.
REMARQUE : Toute la quincaillerie montée en usine est
installée au bon endroit. Se souvenir de l'emplacement
d'une pièce ou d'une attache qu'on a enlevée. Garder les
pièces séparées.
S'assurer que les pièces mobiles se déplacent librement,
que les boulons sont serrés et que les goupilles fendues
B
sont ouvertes.
S'assurer que les écrans de protection sont bien installés et
en bon état de marche.
S'assurer que toutes les étiquettes de sécurité sont placées
C
correctement et qu'elles sont lisibles. Les remplacer si elles
sont endommagées.
S'assurer que les feux fonctionnent correctement.
S'assurer que tous les raccords de graissage sont en place
et lubrifiés.
S'assurer que tous les pneus sont gonflés correctement et
que tous les boulons de roue et les écrous d'essieu sont
serrés au couple approprié.
Débroussailleuses rotatives RC(M)4715 et RCG(M)4715 334-113M-FRC
Liste de vérification de montage
Vérifier
Réf.
Manuel
d'utilisateur
Manuel
d'utilisateur
334-113M-FRC
Manuel
des pièces
334-113P
Manuel
d'utilisateur
Pages 45
et 53
Page 6
Page 26
Page 54
Page 65
13
Table des Matières
loading

Ce manuel est également adapté pour:

Rcm4715Rcg4715Rcgm4715

Table des Matières