AVS Electronics Raptor R Manuel D'installation page 14

Table des Matières
Section téléphonique PSTN B – caractéristiques techniques
Le transmetteur téléphonique PSTN est un module optionnel qui peut être connecté sur la carte de la centrale. Son fonctionnement est
subordonné à son activation dans le menu « installation » du menu installateur.
Connexion externe
Profils des numéros de téléphone
Protocoles
Normes de référence
Grade de sécurité
Type de système de transmission
Mode de fonctionnement (acquit)
Interface AS
Test de la ligne
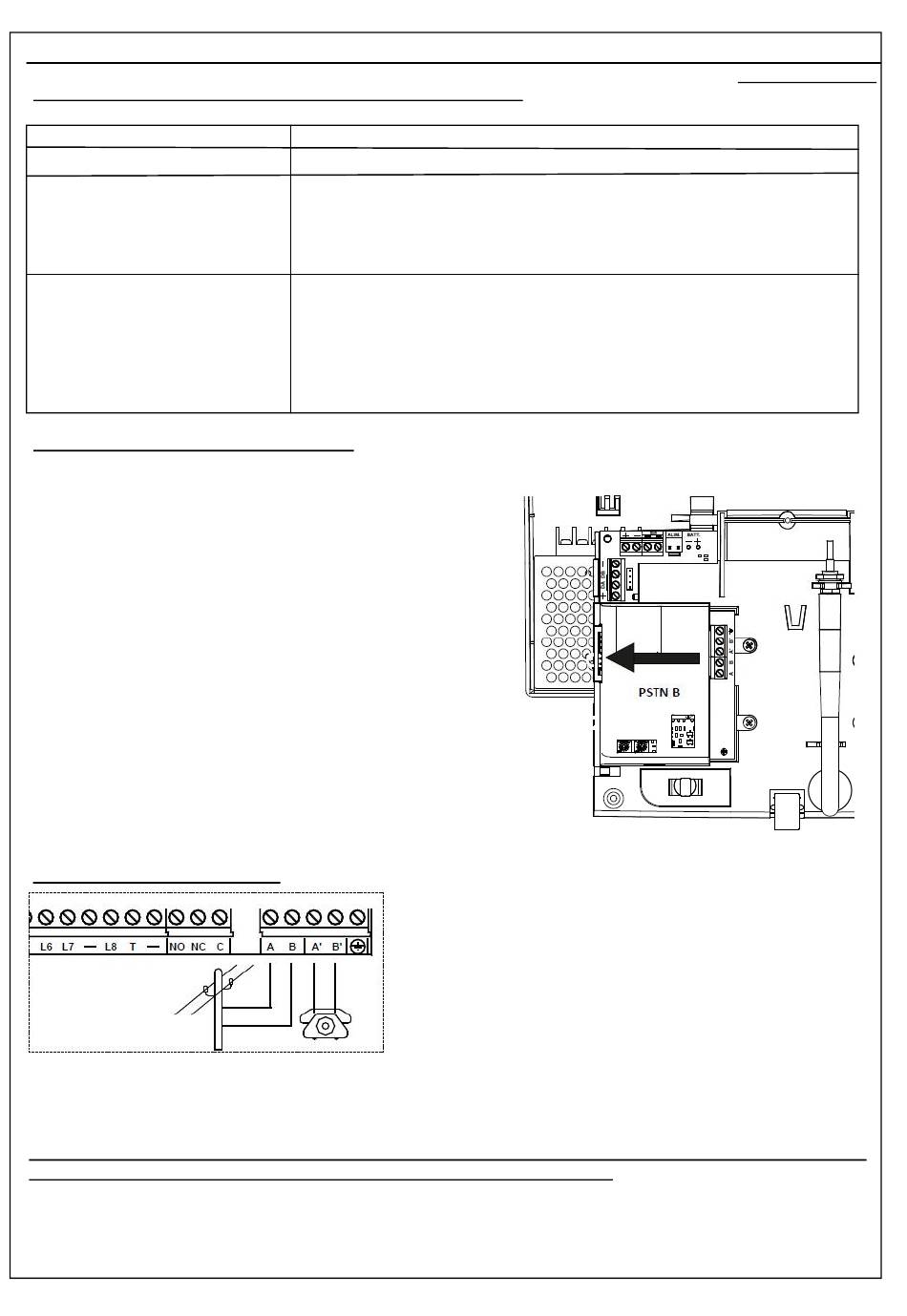
Connexion de la carte PSTN B dans la centrale
1. Débranchez toutes les alimentations 230VAC et batterie.
2. Insérez la carte PSTN B sur le connecteur de la centrale.
3. Vérifiez qu'elle est bien enfichée à fond.
4. Attachez la carte avec les 2 vis fournies.
5. Remettez les alimentations.
Connexion de la ligne téléphonique
PSTN + GSM__________________________________________________________________________________________
La gestion des appels dépendra des types d'interfaces choisis lors de la programmation.
• Ligne téléphonique commutée et dérivée interne
• 16 numéros associables à n'importe quel événement d'alarme ou technique
FAST FORMAT avec canaux programmables
VOCAL
SIA 1
SIA 2
CONTACT-ID
EN50131-1, -3, -10EN50136 -2
Grade 2
SP1 ou DP1
Pass-through
Interface série propriétaire intégrée
Contrôle de la présence de tension
AB : connexion à la ligne téléphonique d'entrée, en tète de
ligne, devant tous les appareils téléphoniques.
A'B' : connexion aux autres appareils téléphoniques.
NB : fixer le câble téléphonique.
Table des Matières
loading

Ce manuel est également adapté pour:

Raptor rkRaptor rt

Table des Matières