Aperçu De L'étalonnage De Base - Endress+Hauser Levelflex M Fmp40 Interface Instructions Condensées

Masquer les pouces Voir aussi pour Levelflex M FMP40 Interface:
Table des Matières
Mise en service
5.3
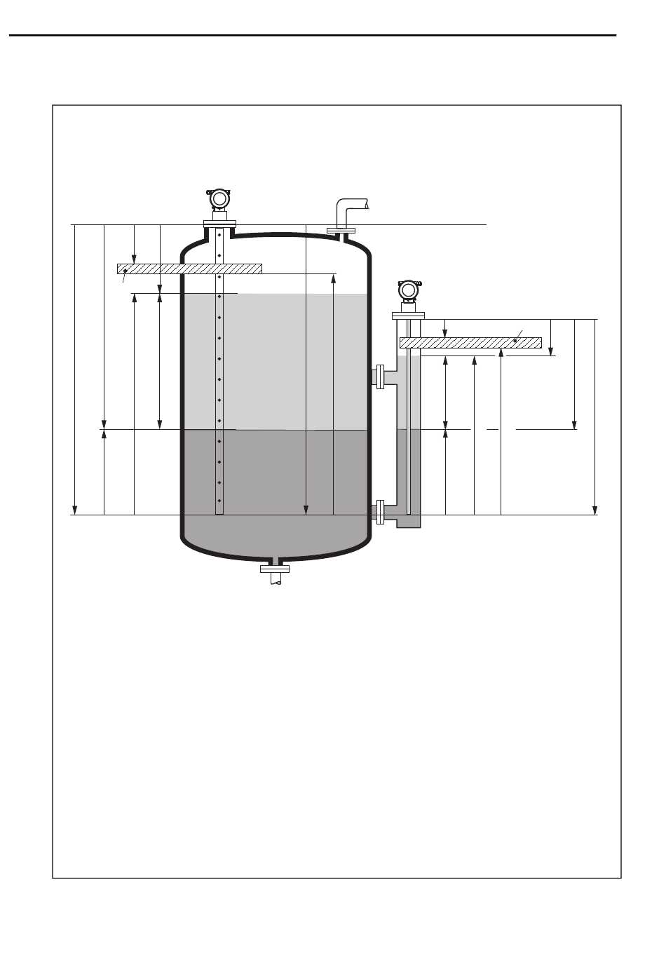
Aperçu de l'étalonnage de base
UB
DS
D
I
LN
L
L
L
I
E
= Etalonnage vide (= point zéro) - réglage en 005
F
= Etalonnage plein (= niveau max.) - réglage en 006
D
= Distance interface (distance bride / CD ) - affichage en 0A6
I
L
= Niveau interface (distance extrémité de la sonde / CD ) - affichage en 0A5
I
D
= Distance niveau total - affichage en 0A5
L
L
= Niveau total - affichage en 0A6
L
LN = Longueur sonde - réglage en 033
UB = Distance de blocage supérieure - réglage en 059
UP = Epaisseur du produit supérieur
DS = Distance de sécurité - réglage en 015
20
D
L
CD
1
UP
CD
2
Levelflex M FMP40 4...20 mA HART
E
F
2
1
Bride :
point de référence
de la mesure
UB
DS
D
L
UP
L
F
L
L
I
L00-FMP4xxxx-19-00-00-de-031
Endress+Hauser
D
I
LN,
E
Table des Matières
loading

Table des Matières