Diaphragmes Excentriques - Endress+Hauser Rms621 Manuel De Mise En Service

D'énergie
Masquer les pouces Voir aussi pour RMS621:
Table des Matières
RMS621
Endress+Hauser
Le compteur de débit et d' é nergie comptabilise le résultat (compte et décompte)
Important ! Dans le cas de mesures bidirectionnelles, une valeur négative doit être réglée
dans la position de menu Débit de fuite. Règle valable :
Valeur de débit de fuite < 0 : les valeurs autour du point zéro (-/+ valeur de débit de fuite)
sont ramenées à zéro.
Valeur de débit de fuite >= 0 : les valeurs inférieures à la valeur de débit de fuite
sont ramenées à zéro.
• Utilisation de 2 transmetteurs DP, p. ex. mise à l' é chelle respectivement 0 - 100 mbar
Pour la mesure de débit dans le sens avant et arrière, on utilise respectivement un trans-
metteur DP. La configuration est effectuée indépendamment l' u ne de l' a utre dans des
applications séparées. Il n' e xiste pas de compteurs de comptabilisation.

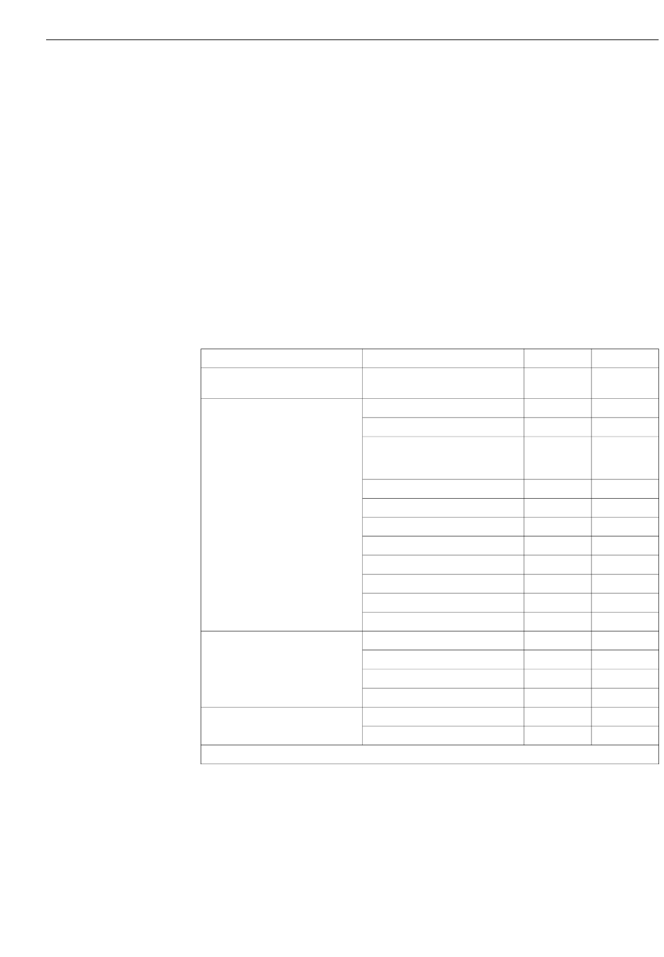
Diaphragmes excentriques

Pour la mesure de débit avec des diaphragmes excentriques selon ISO TR 15377, l' i ndication
de la rugosité moyenne du tube k est nécessaire. Les valeurs exactes pour la rugosité de tube
peuvent être déterminées au moyen d' e ssais de perte de charge. Si aucune donnée de perte
de charge n' e st disponible, les valeurs standard suivantes peuvent être utilisées (ISO 5167 -
1 2003, B1).
Matériau
Laiton, cuivre, aluminium, plastiques,
verre
Acier
Fonte de fer
Amiante-ciment
Remarque : Ra est dans ce cas calculé sur la base Ra = k/π.
Splitting Range (extension de la gamme de mesure)
La gamme de mesure d' u n transmetteur de pression différentielle se situe dans la gamme de
1:3 à 1:7. Cette fonction permet de dilater la gamme de mesure de débit à 1:20 et plus grâce
à l' u tilisation de trois transmetteurs de pression différentielle par point de mesure.
Remarques concernant la configuration :
1.
Sélectionner Débit/Splitting Range 1 (2, 3)
Conditions
lisse, sans dépôts
nouveau, inox
nouveau, sans soudure, étiré à froid
nouveau, sans soudure, étiré à chaud
nouveau, sans soudure, laminé
nouveau, soudé longitudinalement
nouveau, soudé en spirale
légèrement rouillé
rouillé
entartré
fortement entartré
nouveau, bitumé
normal, bitumé
galvanisé
nouveau
rouillé
entartré
nouveau, bitumé
nouveau, revêtu ou pas revêtu
usagé, non revêtu
Annexe
k
Ra
< 0,03
< 0,01
< 0,03
< 0,01
< 0,03
< 0,01
≤ 0,10
≤ 0,03
≤ 0,10
≤ 0,03
≤ 0,10
≤ 0,03
0,10
0,03
0,10...0,20
0,03...0,06
0,20...0,30
0,06...0,10
0,50...2
0,15...0,6
> 2
> 0,6
0,03...0,05
0,01...0,015
0,10...0,20
0,03...0,06
0,13
0,04
0,25
0,08
1,0...1,5
0,3...0,5
> 1,5
> 0,5
0,03...0,05
0,01...0,015
< 0,03
< 0,01
0,05
0,015
77
Table des Matières
loading

Table des Matières