Télécharger Imprimer la page
Napoleon ELEMENT NEFB42H-BS Manuel D'installation
Masquer les pouces Voir aussi pour ELEMENT NEFB42H-BS:
Les langues disponibles

Les langues disponibles

Liens rapides

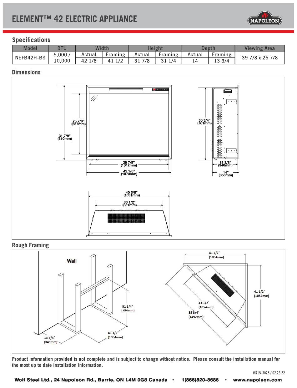
FRONT VIEW
SIDE VIEW
TOP VIEW
Rough Framing
Rough Framing in a Corner
loading

Sommaire des Matières pour Napoleon ELEMENT NEFB42H-BS

  • Page 3 VUE DE FACE VUE DE CÔTÉ VUE DE DESSUS Ossature Approximatif Ossature Approximatif dans un Coin...
  • Page 4 Retirez soigneusement l’appareil de la boîte et retirez AVERTISSEMENT les supports. Avant d’installer l’appareil, retirez tous les matériaux d’emballage et vérifi ez que l’appareil fonctionne • Lorsque vous utilisez de la peinture ou de la laque pour fi nir la tablette, la correctement en branchant le cordon d’alimentation dans peinture ou la laque doit être résistante à...