Télécharger Imprimer la page

Installatievoorschrift - Mastervolt Battman Pro Mode D'emploi

INSTALLATION GUIDE
EN
Please read this document very carefully to avoid battery monitor malfunction
and/or fire hazards!
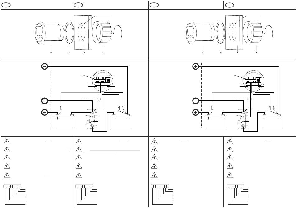
Mounting sequence
Montage volgorde
BattMan Pro
Battery positive 'MAIN' (to load e.g.
charger or inverter)
Batterij positief 'MAIN' (naar belasting b.v.
lader of omvormer)
Battery negative (system ground)
Batterij negatief (systeem min)
Battery positive 'AUX' (to load e.g. charger
or starter motor)
Batterij positief 'AUX' (naar belasting b.v.
lader of startmotor)
* Make sure the batteries you install are
always in good health, preferably fully
charged
Installeer alleen 'gezonde', bij voorkeur
*
Auxiliary battery (optional)*
reeds volledig geladen, batterijen
'Auxiliary' batterij (optioneel)*
The shunt must always be installed into the negative line!
Installing the shunt into the positive line may damage the battery monitor!
WARNING
All fuses must be located as close as possible to the battery terminals. Install
the fuses only when all other connections are made and double checked!
WARNING
All thick lines in the above connection diagram, represent the main current
lines. These lines must be wired with a wire type which can handle the full
battery current!
WARNING
All thin lines (from and to battery monitor) in the above connection diagram,
2
must have a minimum thickness of AWG24/0.2mm . Maximum distance
between battery monitor and shunt is 30 meters.
WARNING
To avoid large errors in current measurement, always twist the 'I+' and 'I-'
shunt lines. Connect all wires to the shunt exactly as given in the connection
diagram.
WARNING
Battery monitor connection terminals :
A
A
I
I
V
V
2
1
A
M
positive supply voltage
negative supply voltage
main battery voltage sense input
auxiliary battery voltage sense input
current sense input from shunt (system minus side)
current sense input from shunt (battery minus side)
potential free alarm contact (terminal 1)
potential free alarm contact (terminal 2)
INSTALLATIE VOORSCHRIFT
NL
Bestudeer dit document uiterst zorgvuldig om schade aan de batterij monitor
en/of brandgevaar te voorkomen!
Hole diameter 52 - 54mm
Gat diameter 52 - 54mm
Turn direction for nut locking
Draairichting voor moerafsluiting
Rubber washer
Mounting panel
Locking nut
Rubber pakking
Montage paneel
Sluitmoer
Use enclosed screw driver
Gebruik bijgesloten
schroevendraaier
A
2
A
1
I
I
V
A
V
M
60V/1A alarm contact
Do not use
Niet gebruiken
Twisted pair!
1AT fuse
2x 1AT fuse
1AT zekering
2x 1AT zekering
I-
Shunt
I+
Main battery*
'Main' batterij*
De shunt moet altijd worden opgenomen in de minleiding. De batterij monitor
kan beschadigen wanneer de shunt in de plusleiding wordt opgenomen!
LET OP
Alle zekeringen moeten zo dicht mogelijk bij de batterij polen geplaatst
worden. Installeer de zekeringen pas wanneer alle overige aansluitingen
gemaakt en nogmaals gecontroleerd zijn!
LET OP
Alle vet getekende lijnen in bovenstaand aansluitschema geven het
hoofdstroom circuit aan. Deze lijnen dienen bedraad te worden met een
kabel diameter welke geschikt is voor de maximale batterij stroom.
LET OP
Alle dun getekende lijnen (van en naar de batterij monitor) in bovenstaand
schema, moeten minimaal een oppervlakte hebben van 0.2mm . De
maximale afstand tussen batterij monitor en shunt is 30 meter.
LET OP
Om grote meetfouten te voorkomen, moeten de 'I+' en 'I-' lijnen altijd in
elkaar getwist worden. Zorg ervoor dat alle draden van en naar de shunt
exact zo aangesloten worden zoals aangegeven in bovenstaand schema!
LET OP
Battery monitor aansluitingen :
A
A
I
I
V
V
2
1
A
M
positieve voedingsleiding
negatieve voedingsleiding
'main' batterij spanning meetingang
'auxiliary' batterij spanning meetingang
stroom meetingang van shunt ('system min' zijde)
stroom meetingang van shunt ('battery min' zijde)
potentiaal vrij alarm contact (terminal 1)
potentiaal vrij alarm contact (terminal 2)
MONTAGEANLEITUNG
DE
Bitte lesen Sie diese Montageanleitung sorgfältig durch, damit Ihr Batterie
Monitor richtig arbeitet und/oder es zu keinem Brand kommt!
Montage Folge
Séquence de montage
Batterie Pluspol 'MAIN' (zu den
verbrauchern z.B. Ladegerät oder Inverter)
Positif batterie 'MAIN' (vers utilisations ex.
Chargeur / convertisseur)
Batterie Minuspol (Systemerde)
Négatif batterie (- système)
Batterie Pluspol 'AUX' (zu den
Verbrauchern z.B. Ladegerät)
Positif batterie 'AUX' (vers utilisations ex.
Chargeur)
*
Vergewissern Sie sich, dass die von Ihnen
eingebauten Batterien in gutem Zustand und
am besten voll aufgeladen sind.
*
Assurez-vous que les batteries que vous
installez sont toujours saines, de préférence
chargées.
Der Shunt muß immer in die negative Hauptversorgungsleitung angebracht
werden. Das Anbringen des Shunts in die positive Leitung kann den Batterie
Monitor beschädigen!
WARNUNG
Alle Sicherungen muss sich so nah wie möglich an den Batterieanschlüssen
befinden. Installieren Sie die Sicherungen erst dann, wenn alle anderen
Anschlüsse verbunden und überprüft wurden!
WARNUNG
Alle dicken Linien in der obigen Anschlusszeichnung stellen die
Hauptstromleitungen dar. Diese Leitungen müssen mit Kabeln gezogen
werden, die mit dem vollen Batteriestrom belastet werden können!
WARNUNG
Alle dünnen Linien (vom und zum Batteriemonitor) in der obigen
2
Anschlusszeichnung stellen Leitungen dar, die eine Minimal Querschnitt von
2
AWG24/0,2mm aufweisen müssen. Die maximale Entfernung zwischen
WARNUNG
Batteriemonitor und Shunt beträgt 30 Meter.
Um größeren Fehlern in der Strommessung vorzubeugen, verdrillen Sie die
Shuntleitungen „I+" und „I-". Verbinden Sie alle Drähte mit dem Shunt auf
genau die Weise, die in der Anschlusszeichnung angegeben wird!
WARNUNG
Batterie Monitor Anschlussklemmen :
A
A
I
I
V
V
2
1
A
M
Plus-Versorgungsspannung
Minus-Versorgungsspannung
'Main' Batteriespannungsfühlereingang
'Auxiliary' Batteriespannungsfühlereingang
Stromfühlereingang vom Shunt ('System Minus' Seite)
Stromfühlereingang vom Shunt ('Battery Minus' Seite)
potentialfreier Alarmkontakt (Anschluss 1)
potentialfreier Alarmkontakt (Anschluss 2)
INSTRUCTIONS D'INSTALLATION
FR
Veuillez les respecter scrupuleusement pour éviter tout dysfonctionnement et/ou
BattMan Pro
Gummi Ring
Montage Brett
Sperr Mutter
Rondelle en caoutchouc
Panneau de montage
Ecrou de blocage
Benutzen Sie den mit-
gelieferten Schraubendreher
Utilisez le tourne-vis fourni
A
2
A
1
I
I
V
A
V
M
60V/1A Alarm Kontakt
60V/1A contact l'alarme
verdrilltes Paar
Paire torsadée
1AT Sicherung
1AT fusible
I-
Shunt
I+
'Auxiliary' Batterie (Optional)*
Batterie 'Auxiliary' (optionnelle)*
Le Shunt doit toujours être installé sur le négatif ( câble noir )! Installer le
Shunt sur le positif ( câble rouge ), endommagerait le contrôleur de batterie!
ADVERTISSEMENT
Tous les fusibles doivent être situés aussi près que possible des bornes de
la batterie. Installez les fusibles uniquement lorsque toutes les autres
connections sont faites et que vous les avez à nouveau vérifiées.
ADVERTISSEMENT
Toutes les lignes épaisses du diagramme de connexion, représentent les
lignes de courant principal. Ces lignes doivent être câblées avec un type de
câble qui peut supporter le courant de la batterie pleine!
ADVERTISSEMENT
Toutes les lignes fines (depuis et vers le moniteur de la batterie) dans le
diagramme de connexion ci-dessus, doivent avoir une épaisseur minimum
2
de AWG24/0.2mm . La distance maximum entre le moniteur de la batterie et
ADVERTISSEMENT
le shunt est 30 mètres.
Pour éviter de grosses erreurs de mesure de courant, veuillez toujours
tourner les lignes shunt 'I+' et 'I-' Connectez tous les câbles au shunt
exactement comme indiqué sur le diagramme de connexion.
ADVERTISSEMENT
Raccordement de contrôleur :
A
A
I
I
V
V
2
1
A
M
alimentation positif
alimentation négatif
'Main' mesure de tension positif
'Auxiliary' mesure de tension positif
mesure de courant du shunt (côté 'System negatif')
mesrue de courant du shunt (côté 'Battery negatif')
contact sec alarme (borne 1)
contact sec alarme (borne 2)
Mastervolt BattMan Pro installation guide rev2endf - Printed in The Netherlands
risques d'incidents.
Loch Durchmesser 52 - 54mm
Trou diamètre 52 - 54mm
Drehrichtung für Muttersperrung
Tournez le sens pour le blocage
de l'écrou
Nicht verwenden
Ne pas utiliser
2x 1AT Sicherung
2x 1AT fusible
'Main' Batterie*
Batterie 'Main'*
loading