RED COMPACT 18 EASY CLEAN Manuel D'installation Et D'utilisation page 60

Table des Matières
12-RUBRIQUES DU MENU ET FONCTIONNEMENT
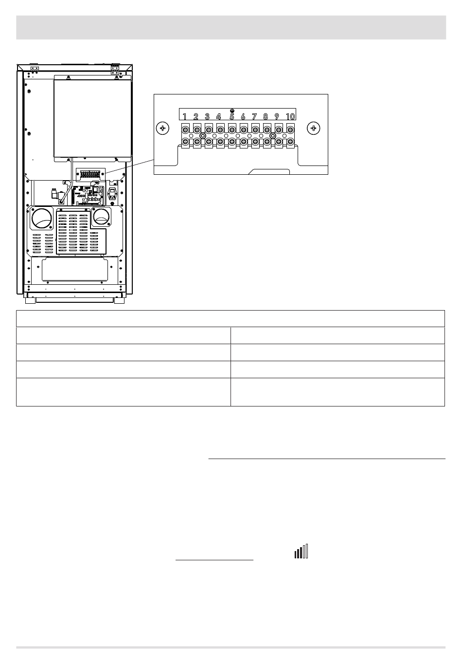
BRANCHEMENTS ÉLECTRIQUES
CONTACTS À BORNE
POS.1-2 THERMOSTAT EXTERNE/THERMOSTAT PUFFER
POS.3-4 SONDE PUFFER/BOUILLEUR
POS.5 MISE À LA TERRE
POS.6-7 CHAUDIÈRE SUPPLÉMENTAIRE
ALLUMAGE
Appuyer sur la touche 1 (OFF) pendant quelques secondes ; l'affichage sur le panneau montrera un ON avec une flamme qui clignote.
Quand la flamme cesse de clignoter, la chaudière a atteint la condition de fonctionnement pour la « fourniture de puissance ».
La température ambiante par défaut est de 20 ° C, si vous souhaitez la modifier, agir comme décrit dans le menu réglages SET
TEMPÉRATURES, agir de la même façon pour configurer la température de l'eau de chauffage et la vitesse du ventilateur ambiant. Pour
activer un éventuel thermostat externe, voir le paragraphe spécifique.
FOURNITURE DE PUISSANCE
À la fin de la phase d'allumage, le panneau affiche ON avec une flamme fixeau niveau 3
des puissances inférieures ou supérieures est gérée de façon autonome selon la réalisation des températures prévues dans la «
Configuration installation ».
58
POS.8 NEUTRE VANNE À TROIS VOIES (*)
POS.9 PHASE VANNE À TROIS VOIES (sanitaire) (*)
POS.10 PHASE VANNE À TROIS VOIES (chauffage) (*)
(*) DÉBRANCHER L'ÉVENTUELLE VANNE À TROIS VOIES ET LE
FLUXOSTAT INTERNES
. La modulation suivante de la flamme vers

Hide quick links:

Table des Matières
loading

Ce manuel est également adapté pour:

Compact 24 easy clean

Table des Matières