Daikin FTXB09A RXB09A Manuel D'installation page 49

Série split r410a
Table des Matières
Les langues disponibles

Les langues disponibles

Trabajo de drenaje. (Sólo Unidad de Bomba de Calor)
1) Para el drenaje, utilice el codo previsto para ello.
2) Si el puerto de drenado está cubierto por una base de montaje o
una superficie de suelo, coloque bases adicionales de al menos
1-3/16" (30mm) de altura debajo de los soportes de la unidad
exterior.
3) En zonas frías, no utilice ningún codo de drenaje, tapones de
drenaje ni mangueras de drenaje con la unidad exterior. (De lo
contrario, el agua de drenaje se puede congelar, impidiendo el
funcionamiento de la calefacción.)
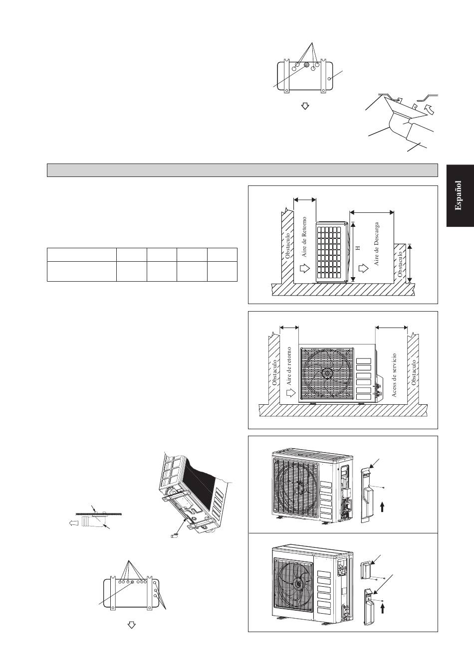
INSTALACIÓN DE LA UNIDAD DE EXTERIOR (18/24)
La unidad exterior se ha de instalar de tal modo que evite cortocircuitos
del aire caliente descargado o obstrucción del flujo de aire suave. Por
favor, siga el espacio proporcionado para la instalación tal y como
se indica en el gráfico. Seleccione el lugar más frio posible donde
el aire de entrada no sea superior a la de la temperatura exterior
(Consulte el rango operativo).
Espacio libre de instalación
Dimensión
A
11-13/16
Distancia mínima,
pulgadas (mm)
(300)
Nota: Si hay algún obstáculo mayor que la mitad de la altura de
la unidad (H), por favor dejar un mayor margen a la cifra indicada
en la tabla anterior.
Disposición Condensada Del Agua De La Unidad Al Aire libre
(Unidad De La Pompa De Calor Solamente)
Hay 10 agujeros en la base de la unidad al aire libre para que
el agua condensada fluya hacia fuera. Inserte el codo del dren a
uno de los agujeros.
Para instalar el codo del dren, primer relleno una porción del
gancho a la base (porción A), entonces tirar del codo del dren
en la dirección demostrada por la flecha mientras que inserta
la otra porción a la base. Después de la instalación, cheque
para asegurarse de que el codo del dren se aferre en la base
firmemente.
Si la unidad está instalada en un nevoso y chily un área, el agua
condensada puede congelar en la base. En tal caso, quite por favor
el enchufe en el fondo de la unidad para alisar el drenaje.
A
BASE
DRENE EL CODO
DRENE EL CODO
Tapón de drenaje
Codo de drenaje
Lado de salida de aire
B
C
D
39-3/8
11-13/16
19-11/16
(1000)
(300)
(500)
Tapón de drenaje
3-7
Tapón de drenaje
Tapón de drenaje
Codo de
drenaje
Lado de salida de aire
Marco inferior
Codo de drenaje
Manguera (disponible en el mercado,
diámetro interior 5/8" (16mm))
A
C
09/12
18/24
B
H/2
D
Quite por favor
la placa lateral al
conectar la tubería
y conectando la
cuerda
EMPUJE Y TIRE
HACIA ARRIBA
Quite por favor
la placa lateral al
conectar la tubería
y conectando la
cuerda
EMPUJE Y TIRE
HACIA ARRIBA
Table des Matières
loading

Table des Matières