Daikin FTXB09A RXB09A Manuel D'installation page 45

Série split r410a
Table des Matières
Les langues disponibles

Les langues disponibles

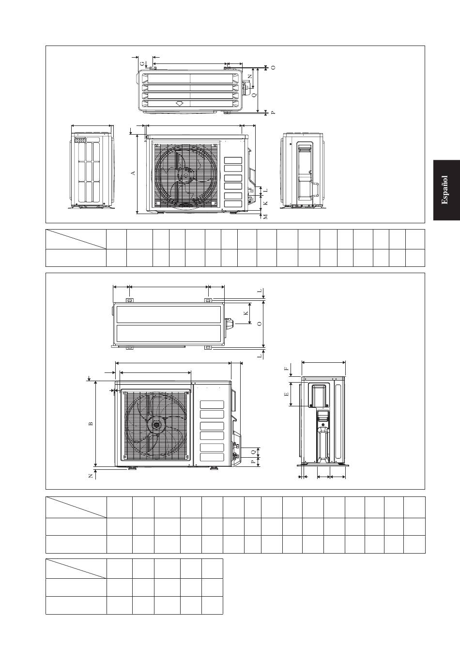
Unidad exterior [RXB/RKB]
5/64
E
F
(2)
Dimensión
A
Modelo
09/12
21-5/8
25-15/16
(550)
J
1/8
M
(3)
T
Dimensión
A
Modelo
18
33-11/16
(855)
24
33-11/16
(855)
Dimensión
P
Modelo
18
2-7/8
(73)
24
2-7/8
(73)
J
H
D
B
B
C
D
E
F
2
7/16
10-3/4
5/8
(658)
(51)
(11)
(273)
(16)
I
J
A
D
B
C
D
E
24-3/4
12-15/16
20-1/2
7-1/16
(628)
(328)
(520)
(179)
28-3/4
12-15/16
20-1/2
7-1/16
(730)
(328)
(520)
(179)
Q
R
S
T
2-15/16
5/16
2-5/8
1/4
(75)
(8)
(67)
(7)
2-15/16
5/16
2-5/8
1/4
(75)
(8)
(67)
(7)
Todas las dimensiones están en pulgadas (mm)
I
C
G
H
I
J
K
9/16
18-1/2
3-3/4
3-11/16
3-11/16
(14)
(470)
(96)
(93)
(94)
Todas las dimensiones están en pulgadas (mm)
S
R
F
G
H
I
1-13/16
4
4-7/16
23-3/4
4-15/16
(46)
(101)
(113)
(603)
(126)
1-13/16
4
4-7/16
23-3/4
4-15/16
(46)
(101)
(113)
(603)
(126)
3-3
L
M
N
O
P
2-3/8
9/16
5-1/4
5/16
3/8
(60)
(14)
(133)
(8)
(10)
C
G
H
J
K
L
M
N
6-7/16
9/16
1-5/16
15/16
(164)
(15)
(34)
(23)
6-7/16
9/16
1-5/16
15/16
(164)
(15)
(34)
(23)
Q
11-3/4
(299)
O
14-1/4
(362)
14-1/4
(362)
Table des Matières
loading

Table des Matières