PERCo WMD-05S Manuel D'instructions page 8

Portillon pivotant automatique à entertaînement électique
Table des Matières
Portillon pivotant automatique à l'entraînement électrique WMD-05S
Le bloc de commande (8) répond pour le bon fonctionnement et l'alimentation du portillon
pivotant. Il représente un appareil indépendant dans un boîtier métallique (dessin 3) qui a
une fixation murale (ou de table) résistante au vandalisme.
Le PC (9) représente un appareil compact de table dans un boîtier en plastique ABS à
résistance élevée aux chocs et sert à programmer les modes de fonctionnement du
portillon pivotant lors de la commande manuelle.
Le PC (9) est relié au bloc de
commande (8) par un câble multipaire flexible (12) via une entrée dans la partie inférieure
du bloc de commande (dessins 3 et dessin 7, Annexe А).
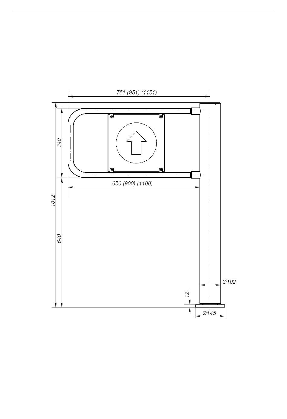
Dessin 1: Dimensions du portillon pivotant
7
Table des Matières
loading

Table des Matières