Précautions À Prendre Lors De L'installation; Travaux D'évacuation - Daikin Split R410A Rxg50L2V1B Manuel D'installation

Masquer les pouces Voir aussi pour split R410A RXG50L2V1B:
Table des Matières
Consignes d'installation
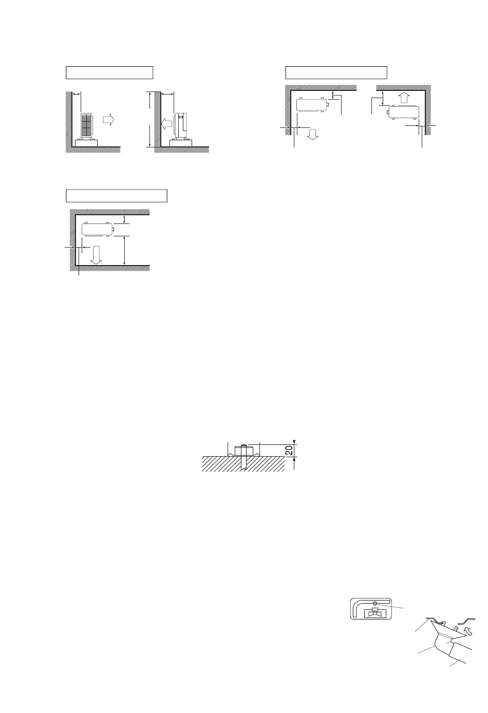
• Suivez les consignes d'installation ci-dessous si l'entrée ou la sortie du flux d'air de l'unité extérieure est bloquée par un mur ou
un autre obstacle.
• Pour tous les exemples d'installation suivants, la hauteur du mur du côté de la sortie est de 1200 mm maximum.
Un côté face au mur
Plus de 100
Sens
de l'air
Trois côtés face au mur
Plus de 50
Vue du dessus
Précautions à prendre lors de
l'installation
• Vérifiez la résistance et le niveau du sol d'installation de manière à ce que l'unité ne génère pas de vibrations ou de bruits après
installation.
• Conformément au plan des fondations, fixez fermement l'unité à l'aide des boulons de scellement (préparez 4 jeux de boulons de
scellement M8 ou M10, d'écrous et de rondelles disponibles dans le commerce).
• Il est préférable de visser les boulons de scellement jusqu'à ce que leur extrémité soit à 20 mm de la surface des fondations.
Installation de l'unité extérieure
1.
Installation de l'unité extérieure
1) Avant d'installer l'unité extérieure, reportez-vous aux sections "Précautions relatives au choix de l'emplacement" et "Schéma
d'installation de l'unité extérieure".
2) Procédez comme suit si des travaux d'évacuation sont nécessaires.
2.
Travaux d'évacuation
1) Utilisez le bouchon d'évacuation.
2) Si l'orifice de purge est masqué par une base de montage ou la surface du sol,
placez des pieds supplémentaires d'au moins 30 mm de haut sous les pieds
existants de l'unité extérieure.
3) Dans les lieux froids, n'utilisez pas de tuyau d'évacuation avec l'unité extérieure
(l'eau d'évacuation risquerait en effet de geler et de perturber les performances
de chauffage).
Français
Plus de 350
1200
max.
Vue de côté
Plus de 100
Plus de 350
Deux côtés face au mur
Plus de 50
Unité: mm
Plus de
Plus de
100
350
Plus de 50
Vue du dessus
Orifice de purge
Bâti inférieur
Bouchon d'évacuation
Tuyau (disponible dans le commerce,
diamètre intérieur: 16 mm)
5
Table des Matières
loading

Ce manuel est également adapté pour:

Split r410a serieSplit r410a rxg-l

Table des Matières