Riello RG2 Instructions Pour L'installation, L'utilisation Et L'entretien page 56

Masquer les pouces Voir aussi pour RG2:
Table des Matières
Les langues disponibles
  • FR

Les langues disponibles

  • FRANÇAIS, page 22
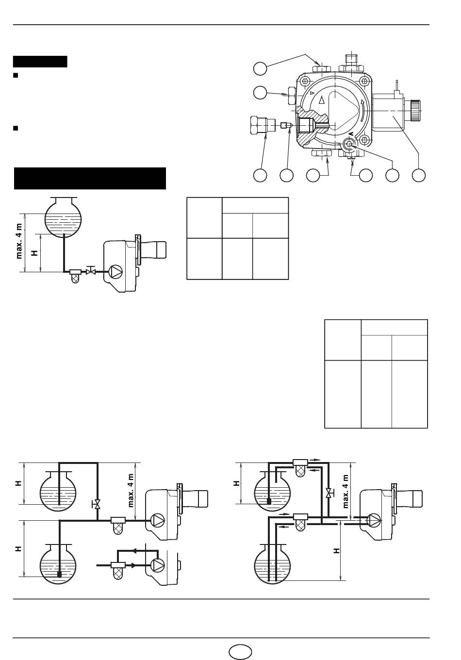
3.3 ΤΡΟΦΟ∆ΟΤΗΣΗ ΚΑΥΣΙΜΟΥ
ΠΡΟΣΟΧΗ:
Η αντλία είναι κατασκευασµένη για δισωλήνια
τροφοδοσία. Για µονοσωλήνια τροφοδότηση, είναι
αναγκαίο να ξεβιδώσετε την τάπα επιστροφής (2), να
βγάλετε τη βίδα by-pass (3) και στη συνέχεια να
βιδώσετε πάλι την τάπα (2), (βλέπε εικ. 5).
Πριν εκκινήσετε τον καυστήρα, βεβαιωθείτε ότι ο
σ ωλ ή να ς ε πι σ τ ρ ο φ ή ς τ ο υ κα υ σί µ ο υ δ εν εί να ι
βουλωµένος αλλιώς µπορεί να καταστρέψετε την
τσιµούχα της αντλίας.
ΕΓΚΑΤΑΣΤΑΣΗ ΑΠΑΓΟΡΕΥΜΕΝΗ
ΣΤΗ ΓΕΡΜΑΝΙΑ
Εικ. 6
ΓΕΜΙΣΜΑ ΑΝΤΛΙΑΣ:
Στην εγκατάσταση της εικ. 6, αρκεί να λασκάρετε τη σύνδεση
του κενόµετρου (5, εικ. 5) και να περιµένετε έως ότου τρέξει καύσιµο.
Στις εγκαταστάσεις της εικ. 7 και 8, εκκινήστε τον καυστήρα και περιµένετε
την έναυση. Σε περίπτωση που παρουσιαστεί εµπλοκή πριν την άφιξη του
καυσίµου, περιµένετε τουλάχιστον 20 δευτερόλεπτα για να επαναλάβετε την
ενέργεια. Η µέγιστη αρνητική αντίθλιψη δεν πρέπει να υπερβαίνει τα 0,4 bar
(30 cm Hg). Πέρα από αυτή την τιµή, παρουσιάζεται έκλυση αερίων του
πετρελαίου. Συνιστάται οι σωληνώσεις να είναι τέλεια στεγανές.
Στις εγκαταστάσεις µε αρνητική αντίθλιψη (εικ. 8) συνιστάται η άφιξη του σωλήνα
επιστροφής να είναι στο ίδιο ύψος µε το σωλήνα αναρρόφησης. Στην περίπτωση
αυτή δεν είναι αναγκαία η βαλβίδα αντεπιστροφής. Αν αντίθετα ο σωλήνας
επιστροφής καταλήγει ψηλότερα από τη στάθµη του καυσίµου, η βαλβίδα
αντεπιστροφής είναι αναγκαία. Η λύση αυτή είναι λιγότερο ασφαλής από την
προηγούµενη, λόγω πιθανής διαρροής της βαλβίδας.
Είναι αναγκαία η εγκατάσταση φίλτρου στη γραµµή τροφοδοσίας του καυσίµου.
H
= ύψος αναρρόφησης
2306
Η
µέτρα
0,5
1
1,5
2
D5713
Εικ. 7
L
= µέγιστο σωλήνα αναρρόφησης
8
1
2
3
L µέτρα
Ø i
Ø i
8 mm
10 mm
10
20
20
40
40
80
60
100
Ø i = εσωτερική διάµετρος σωληνώσεων.
4
GR
Εικ. 5
D5026
4
5
6
1 - Αναρρόφηση
2 - Επιστροφή
3 - Βίδα by-pass
4 - Σύνδεση µανόµετρου
5 - Ρυθµιστής πίεσης
6 - Σύνδεση κενόµετρου
7 - Βαλβίδα
8 - Βοηθητική βαλβίδα ελέγχου
ροής
L µέτρα
Η
Ø i
µέτρα
8 mm
0
35
0,5
30
1
25
1,5
20
2
15
3
8
3,5
6
Εικ. 8
7
Ø i
10 mm
100
100
100
90
70
30
20
D5714

Hide quick links:

Table des Matières
loading

Ce manuel est également adapté pour:

37377503737753377 t1

Table des Matières