Se connecter
Télécharger
Télécharger
Table des Matières
Matières
Ajouter à mes manuels
Supprimer de mes manuels
Partager
L'URL de cette page:
Lien HTML:
Marquer une page
Ajouter
Manuel sera automatiquement ajouté à "Mes manuels"
Imprimer la page
×
Signet ajouté
×
Ajouté à mes manuels
Manuels
Marques
Wilo Manuels
Pompes
RainSystem AF 150
Notice de montage et de mise en service
Wilo Rainsystem AF150 Notice De Montage Et De Mise En Service page 8
Masquer les pouces
Voir aussi pour Rainsystem AF150
:
Notice de montage et de mise en service
(29 pages)
,
Consignes d'installation
(10 pages)
,
Notice de montage et de mise en service
(32 pages)
1
2
3
4
5
6
7
8
9
10
11
12
Table Des Matières
13
14
15
16
17
18
19
20
21
22
23
24
25
26
27
28
29
30
31
32
33
34
35
36
37
38
39
40
41
42
43
44
page
de
44
Allez
/
44
Matières
Table des Matières
Signets
Table des Matières
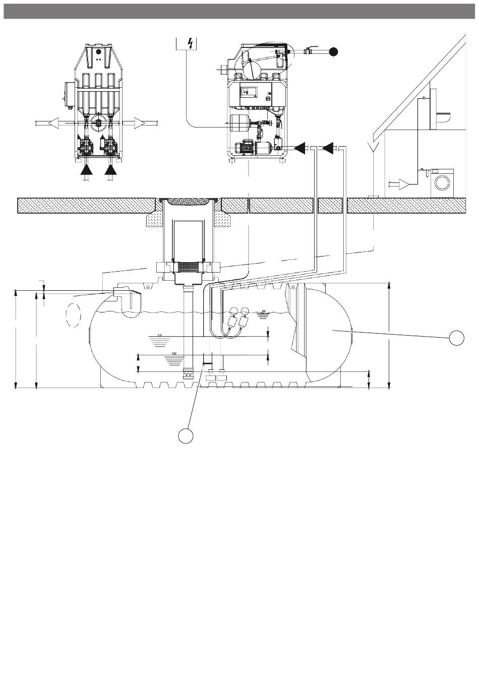
Fig. 5
35
23
Table des
Matières
Page
Précédent
e
Page
Suivant
e
1
...
5
6
7
8
9
10
11
12
Table des Matières
Manuels Connexes pour Wilo Rainsystem AF150
Pompes Wilo RainSystem AF150 Notice De Montage Et De Mise En Service
(32 pages)
Pompes Wilo RainSystem AF 150 Notice De Montage Et De Mise En Service
(29 pages)
Pompes Wilo Rainsystem AF 150 Consignes D'installation
(10 pages)
Pompes Wilo Wilo-Atmos PICO Notice De Montage Et De Mise En Service
(47 pages)
Pompes Wilo Actun OPTI-MS Série Notice De Montage Et De Mise En Service
(48 pages)
Pompes Wilo RainSystem AF 22 Notice De Montage Et De Mise En Service
(51 pages)
Pompes Wilo Atmos GIGA-N Notice De Montage Et De Mise En Service
(44 pages)
Pompes Wilo Atmos GIGA-I Instructions
Instructions supplémentaires (8 pages)
Pompes Wilo Rainsystem AF 400 Consignes D'installation
(7 pages)
Pompes Wilo RainSystem AF400 Notice De Montage Et De Mise En Service
(40 pages)
Pompes Wilo Atmos GIGA-I 80/130-5,5/2/6 Notice De Montage Et De Mise En Service
(44 pages)
Pompes Wilo Atmos BST Notice De Montage Et De Mise En Service
(36 pages)
Pompes Wilo Atmos GIGA-NHT Serie Notice De Montage Et De Mise En Service
(44 pages)
Pompes Wilo EMU D Notice De Montage Et De Mise En Service
(72 pages)
Pompes Wilo Atmos GIGA-I Serie Notice De Montage Et De Mise En Service
(44 pages)
Pompes Wilo Atmos GIGA-I/-B ATEX Serie Instructions
(76 pages)
Produits Connexes pour Wilo Rainsystem AF150
Wilo RainSystem AF 22
Wilo Wilo-Atmos PICO
Wilo Actun OPTI-MS Série
Wilo Atmos GIGA-N
Wilo Drain STS 40/8 A 1-230-50-2-5M KA
Wilo Actun OPTI-QS Série
Wilo Atmos GIGA-I
Wilo Atmos GIGA-B
Wilo Atmos BST
Wilo Atmos GIGA-D
Wilo Atmos GIGA-NHT Serie
Wilo Actun ZETOS-K
Wilo Atmos GIGA-I Serie
Wilo Atmos GIGA-D Serie
Wilo Atmos GIGA-B Serie
Wilo Atmos PICO Serie
Table des Matières
Imprimer
Renommer le signet
Supprimer le signet?
Supprimer de mes manuels?
Connexion
Se connecter
OU
Se connecter avec Facebook
Se connecter avec Google
Télécharger le manuel
Télécharger depuis le disque dur
Télécharger depuis l'URL