Snapper SST-18CL Manuel D'utilisation page 15

Table des Matières
Les langues disponibles

Les langues disponibles

9. Garantía del Motor
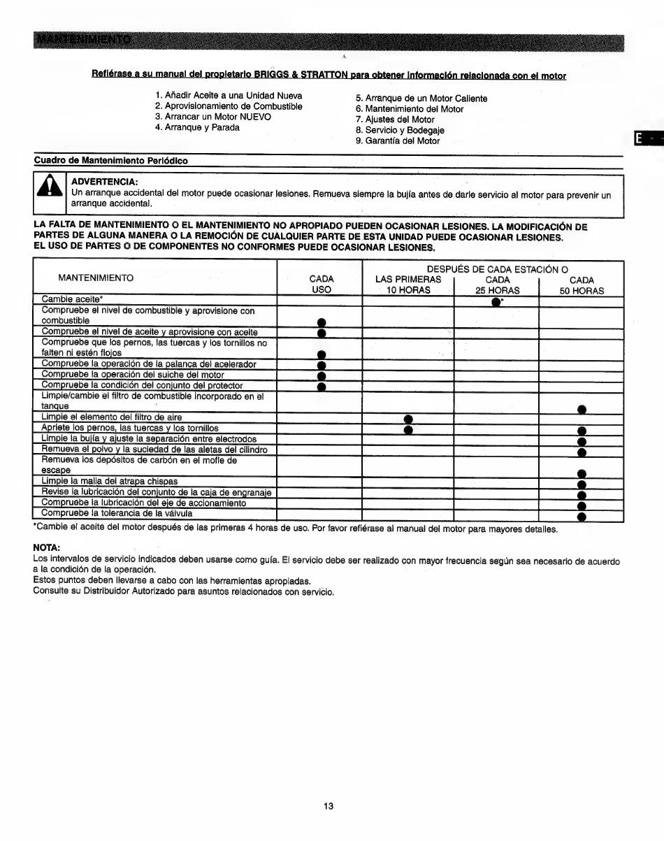
Cuadro de Mantenimiento Periódico
arranque accidental.
DESPUÉS DE CADA ESTACIÓN O
LAS PRIMERAS
10 HORAS
MANTENIMIENTO
Cambie aceite*
Compruebe el nivel de combustible y aprovisione con
combustible
Compruebe el nivel de aceite y aprovisione con aceite
Compruebe que los pernos, las tuercas y los tornillos no
falten ni estén flojos
Compruebe la operación de la palanca del acelerador
Compruebe la operación del suiche del motor
Compruebe la condición del conjunto del protector
ER
e
|
RE
eae
a
|
BR
e.
|
Limpie/cambie el filtro de combustible incorporado en el
NS
tanque
CA
|
[El
A
IES
A
aa
IA
ra
4
Remueva los depósitos de carbón en el mofle de
escape
NOTA:
Estos puntos deben llevarse a cabo con las herramientas apropiadas.
Consulte su Distribuidor Autorizado para asuntos relacionados con servicio.
13
Table des Matières
loading

Table des Matières