Erreka ERTAIN 4 SYSTEM Manuel D'installation page 21

Actionneur pour porte coulissante piétonnière
Masquer les pouces Voir aussi pour ERTAIN 4 SYSTEM:
Table des Matières
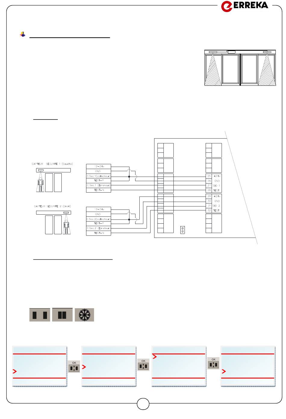
Capteur de sécurité latéral
- Ils évitent les coincements de personnes avec les vantaux lors des manœuvres
d'ouverture en arrêtant la manœuvre et en continuant à vitesse lente, si une présence
est détectée dans la ligne d'ouverture des vantaux. Ils sont installés dans le profilé de
cache, centrés au-dessus de chaque vantail fixe.
Attention : Si un objet est placé dans la zone de détection des capteurs, la porte
s'ouvrira à vitesse lente.
- Connexions
- Configuration des capteurs de sécurité
Les capteurs de sécurité installés doivent posséder une entrée de test permettant de monitoriser leur fonctionnement
correct. Par conséquent, par défaut, leur entrée sera configurée pour activer le test "avec test" avant chaque
manœuvre d'ouverture et également en mode NC (normalement fermé). En cas de devoir modifier cette entrée, il
faudra accéder à la configuration dans le menu de SAT.
Accéder au menu "SAT" : Appuyer sur les 3 touches suivantes pendant 3 secondes : Porte ouverte, porte fermée, en
hiver.
,
Une fois dans le menu, choisir la configuration suivante pour les capteurs intérieur et extérieur :
SAT
Setup
Fonctions de base
Fonctions avancées
Capteurs
Paramètres courbe
,
Capteurs
Capteurs
Photocellules
Sécurité
Activation test
Sécurité
Sécurité 1
Sécurité 2
20
Sécurité 1
NC sans test
NC avec test
NO sans test
NO avec test
Table des Matières
loading

Table des Matières