Utilisation Mixte Sur Deux Zones; 4- Eau Chaude Sanitaire - Fujitsu Atlantic R/O 30L Notice D'installation

Table des Matières
4
Description de fonctionnement

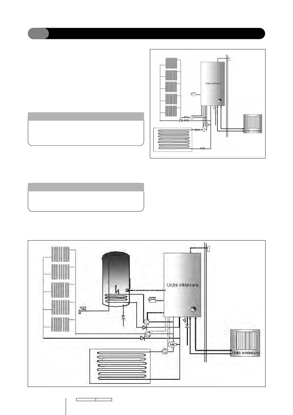
4.2.3 Utilisation mixte sur deux zones

Il est également possible d'avoir deux circuits :
le premier sur vanne trois voies, régulé en « loi d'eau »
(plancher chauffant au rez de chaussée par exemple),
et le deuxième à température fixe régulé par des orga-
nes terminaux (réseau de radiateurs TBT par exem-
ple).
Cette utilisation combine les deux possibilités précéden-
tes.
>
Attention !
Si des radiateurs ou des ventilo-convecteurs sont utilisés
pour le réseau à température fixe, ne pas oublier de
munir ce réseau d'un clapet anti-retour.
Les pompes de circulation et clapet ne sont
pas fournis et sont à dimensionner en fonc-
tion des pertes de charges et débits à assurer
pour chaque circuit.
>
Attention !
la télécommande filaire thermostatée doit être placée
dans la zone chauffée par le plancher.
4.2.4
Eau chaude sanitaire
Avec les 3 applications précédentes, il est possible de combiner une production d'Eau Chaude Sanitaire (E.C.S.).
14
JUILLET 2006
<
<
NI 923 840 A/3

Hide quick links:

Table des Matières
loading

Ce manuel est également adapté pour:

Atlantic r/o 45lAtlantic r/o 54l

Table des Matières