Installation De La Machine; Signalisations; Encombrement De La Machine; Mise En Place De La Machine - Techno Block At Notice De Mode D'emploi Et D'entretien

Groupes frigorifiques condensés à l'air, construits selon le principe d'unité monobloc
Table des Matières
Les langues disponibles
  • FR

Les langues disponibles

6 Installation de la machine

6.1 Signalisations

Le constructeur a prévu l'apposition d'écriteaux d'avertissement et attention avec les signalisations figurant
dans le tableau récapitulatif

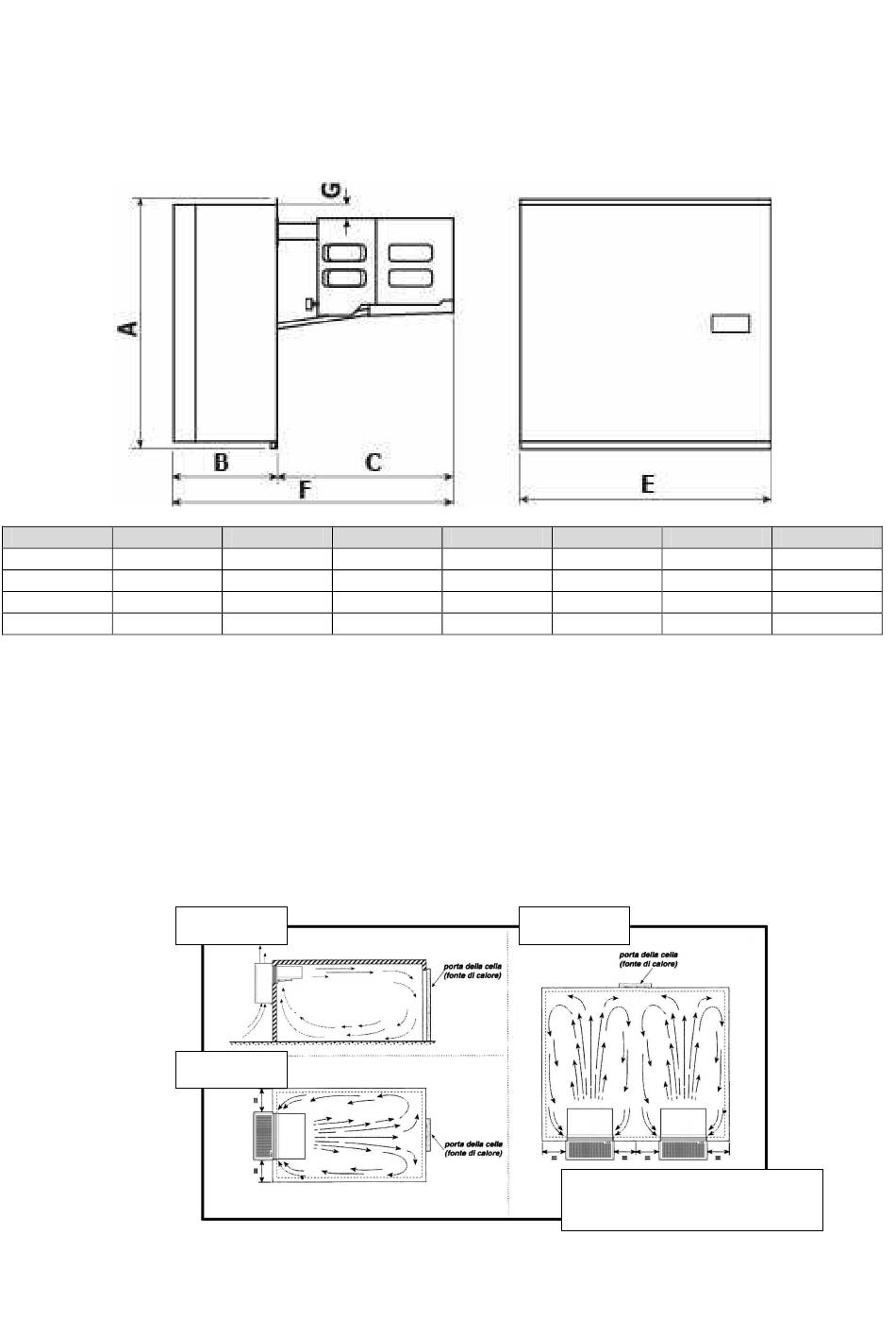
6.2 Encombrement de la machine

Mod.
A
AT1
767
AT2
767
AT3
860
AT4
860

6.3 Mise en place de la machine

Pour obtenir un fonctionnement optimal de l'unité nous conseillons de :
A) Placer la machine dans une pièce ayant un bon rechange d'air et éloignée de sources de forte chaleur.
B) Ouvrir la chambre le moins possible.
C) S'assurer que l'unité ait la possibilité d'une bonne aspiration et d'une expulsion de l'air toute aussi
bonne.
D) Brancher au dégagement de l'eau de condensation se trouvant sur la partie inférieure de l'unité, un
tuyau pour l'évacuation de l'eau.
N.B.: Les unités AT sont équipées d'un système d'évaporation de l'eau de condensation, le tuyau
d'évacuation n'est qu'une précaution en cas d'anomalies de fonctionnement ou d'utilisation
B
310
310
400
450
Solution 1
Solution 2
C
D
535
535
670
670
Solution 3
E
F
485
845
785
845
760
1070
760
1120
Installation sur una chambre
avec plusieurs unités
G
40
40
50
50
30

Hide quick links:

Table des Matières
loading

Produits Connexes pour Techno Block AT

Ce manuel est également adapté pour:

At sérieAt1At2At3At4

Table des Matières