Télécharger Imprimer la page

Spacemaker PS63EU Manuel De Montage page 17

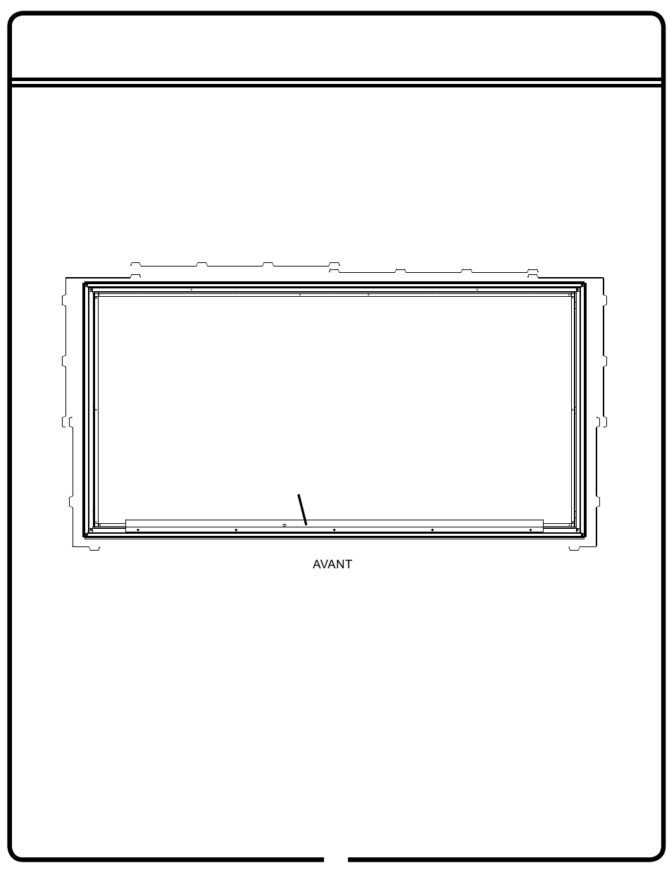
Step 2 / Étape 2 / Schritt 2
Panel Layout /
11147
11278
Disposition du panneau /
6521
TOP VIEW
VUE D'EN HAUT
DRAUFSICHT AUF
Floor Frame Assembly
Assemblage cadre de plancher
Vormontierte Bodenrahmen
Anordnung der Panele
6521
FRONT
VORNE
17
12
EN,FR,GE-17GZ
11147
11278
loading