Electrical Installation; Electrical Installation / Electrical Connections - Showerlux Step-In Sparkling + Music Instructions De Montage

Table des Matières

ElEctrIcal InStallatIon:

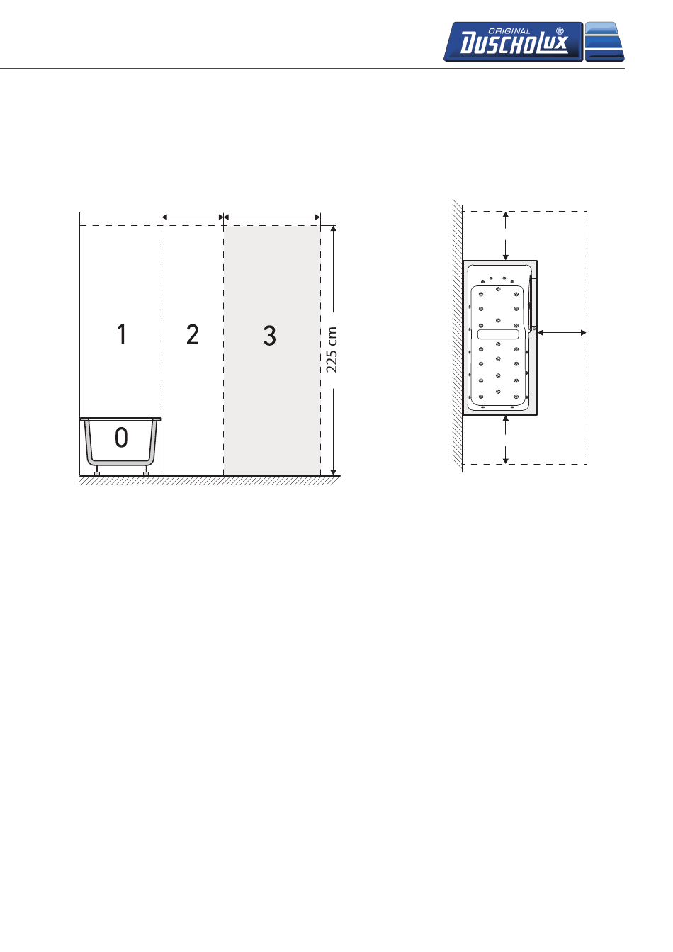
PROTECTION AREAS IN ACCORDANCE WITH DIN VDE 0100-701
60 cm
Electrical installation:
The connection wiring including potential equalisation (potential equalisation rail is fitted to the
frame) for the whirlpool must be installed in accordance with the provisions of your local
electricity supplier and observing DIN VDE 0100-701. The connections must be established by a
l
icensed electrician.
The protected areas must be precisely adhered to
Parts of the device which contain live parts (excluding parts with protected low voltages
up to 12V) must be inaccessible to people using the bath.
The connection is only permitted in area 3, outside protected areas 0 to 2
Electrical connections:
Caution: All assembly and disassembly work on the Step-in Sparkling + Music may only be
carried out when de-energised and in a dust-free condition!
The complete system must be connected through a residual current device (RCD breaker) with
a rated residual current of not more than 30 mA
The complete system must also be permanently connected to the mains via an all-pole
mains isolation switch (in accordance with monitoring category III) which provides a full
disconnection, via permanently fixed wires and fused at 16A.
Switch panel to bathtub connection lead: at least F3Gx1.5 (NYMHY 3 x 1.5 mm2 old)
The Step-in Sparkling + Music must be switched off when not in use or when being serviced
240 cm
60 cm
60 cm
60 cm
15
Table des Matières
loading

Table des Matières