SCS Sentinel VisioDoor 7+ RFID Notice D'utilisation Et D'installation page 18

Table des Matières
Les langues disponibles

Les langues disponibles

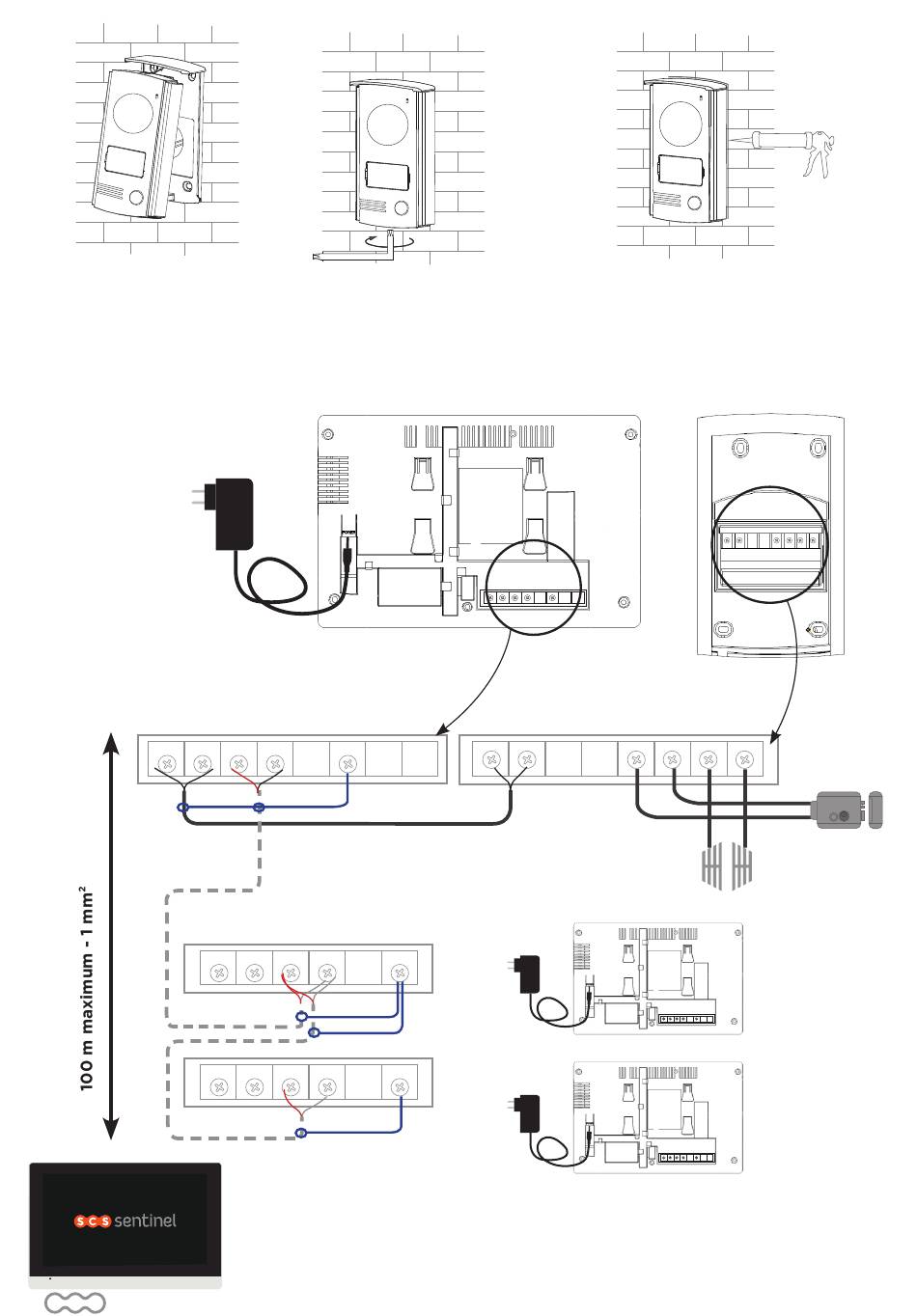
C2- Wiring diagram
You can directly connect
the monitor to your
electrical panel via a 15V
DC 0,8A (minimum)
«rail DIN» transformer.
Electrical knowledges are
necessary, in this case we
advise you to contact a
professional.
1
18
EN
7
Connect the shield
if the cable is shielded
2
A
B
S
Polarity free
0 - 50 m - 0,75 mm²
50 - 100 m - 1 mm²
1
B
2
A
1
2
A
B
The monitor can take up to 15 seconds to turn on.
Do not operate the door station until the home screen appears on the monitor.
After installing and test, place a transparent
acid free silicone seal at the top and on the
sides of the door station (not at the bottom)
to avoid any risk of infiltration.
Indoor monitor
1
2
S
S
Outdoor station
LK+
LK-
SW1
SW2
-
+
12V DC - 700mA
Additional
monitor 1
Additional
monitor 2

Hide quick links:

Table des Matières
loading

Ce manuel est également adapté pour:

Pvf0042

Table des Matières